Pagina Iniziale Pagina Iniziale / VRF Compo Multi / Unità Interna / Serie PEFY
main-header
Unità interna ad incasso in controsoffitto per sistemi VRF Compo Multi
PEFY-P125VMH-E
Capacità in raffreddamento:
Raffreddamento
14.0 kw/ 47.770 BTU
Capacità in riscaldamento:
Riscaldamento
16.0 kw / 54.594
Gas Refrigerante:
Gas Refrigerante
R410A
Silenziosità:
Silenziosità
34-42 dB
Garanzia Mitsubishi Electric:
Garanzia Mitsubishi Electric
2 anni
Unità interna ad incasso in controsoffitto PEFY-P125VMH-E
Preventivo Personalizzato Richiedi un preventivo (risposte immediate) blank
Sopralluogo Gratuito Sopralluogo Roma e provincia blank
 

Manutenzione da un solo lato
Tutte le operazioni di manutenzione dell'unità, ispezione del ventilatore e smontaggio del motore, possono venire eseguite da un solo lato attraverso l'apertura di ispezione.
Manutenzione modello PEFY-P125VMH-E
 
FUNZIONI E PECULIARITA' DI QUESTO MODELLO
 
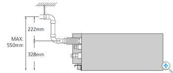
Pompa (optional) per il sollevamento della condensa
Linstallazione della pompa optional consente di sollevare fino a 550 mm la condensa smaltita dall'apparecchio, consentendo in tal modo una maggior libertà in fatto di lay-out dell'impianto ed una riduzione della grandezza orizzontale dei tratti di tubazione.

Sollevamento della condensa

Unità interna canalizzabile disponibile in dieci grandezze per installazione entro controsoffitto particolarmente adatta a grandi superfici dove è richiesta una notevole estensione della rete canalizzazioni aria. Presa d’aria di ricircolo posizionata nella parte posteriore dell’unità con possibilità di connettere nella stessa posizione una parte di aria di rinnovo. Le unità potranno comunque variare la loro prevalenza (50/100/200 Pa grandezze 40/50/63/71/80/100/125/140 e 110/220Pa grandezze 200/250) con opportuno settaggio (l'unità non è dotata di filtri d'aria). Tutti gli attacchi, sia frigoriferi che elettrici che di condensa saranno posizionati nello stesso lato al fine di semplificare i collegamenti . Il ventilatore direttamente accoppiato a motore elettrico a due (una velocità per le taglie 200/250) velocità, consente di distribuire l’aria in ambiente tramite canalizzazioni. La regolazione del flusso di refrigerante avverrà tramite valvola modulante LEV con controllo della potenza tra il 25% ed il 100%.
L’unità è collegata al bus di comunicazione così da riconoscere il refrigerante utilizzato, e poter funzionare con i refrigeranti R22/R407C/R410A. La batteria è a più ranghi con tubi in rame alettati in alluminio Le unità saranno settate tramite i rotary switch al fine di verificate la corretta configurazione del sistema. Tale settaggio dovrà esattamente corrispondere allo schema elettrico-frigorifero eseguito in Autocad dal fornitore. L’unità interna è dotata di appositi connettori liberamente programmabili per il collegamento di segnali di INPUT ed OUTPUT digitali, al fine di gestire apparecchiature generiche tecnologiche di terzi presenti in campo. Sono disponibili 3 segnali di INPUT e 4 segnali di OUTPUT. Ogni unità interna può collegare 2 apparecchiature generiche, ognuna delle quali viene gestita attraverso i seguenti segnali : INPUT : Stato di ON/OFF Stato di Anomalia OUTPUT : Comando di ON/OFF Tramite il kit composto da sistema di supervisione TG-2000A + centralizzatore G-50A + PLC è possibile programmare liberamente i segnali collegati all’unità interna, visualizzarli, ed interagire con essi. E’ inoltre possibile programmare liberamente interazioni tra le apparecchiature generiche e le unità interne dell’impianto, per le quali potranno essere controllate le seguenti funzioni : ON/OFF Impostazione della temperatura Modo operativo Velocità ventilatore.
 
TABELLA TECNICA
 
CARATTERISTICHE TECNICHE DELL'UNITA' INTERNA
Alimentazione: monofase 50 Hz - 220/240 V
Assorbimento elettrico massimo in raffreddamento: 0,48 kW - 2,34 A
Potenzialità nominale in raffreddamento: 14 kW
Potenzialità nominale in riscaldamento: 16 kW
Finitura esterna dell'unità: lamiera d'acciaio zincata
Dimensioni (mm): 380(A)-1.200(L)-900(P)
Peso netto: 70 kg
Batteria di scambio termico: tipo Cross-Fin con tubi di rame alettati in alluminio
Ventilatori ( tipo e n° ) Sirrocco x 2
Portata d'aria bassa/media/alta velocità 1.590/2.280 mc/h
Prevalenza statica utile: 5,10,20 mmca
Tipo Motore: monofase ad induzione
Potenza x n° Motore: 0,26 kW x 1
Refrigerante: R22 & R407C & R410A
Sistema di controllo: mediante valvola LEV
Materiale isolante: schiuma di polietilene e schiuma di poliuretano
Attacchi del refrigerante gas 15,88 mm
Attacchi del refrigerante liquido 9,52 mm
Attacco per drenaggio condensa: 32 (1-1/4")
Livello sonoro bassa/media/alta velocità: 34/42 dB(A)
Filtro aria: Non fornito
Dispositivi di sicurezza:: protezione termica di sicurezza del motore del ventilatore
Collegamento segnali esterni: Connettori liberamente programmabili per il collegamento di segnali di INPUT ed OUTPUT digitali (3 segnali di INPUT e 4 segnali di OUTPUT)
 
INDICE GENERALE VRF